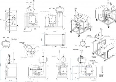
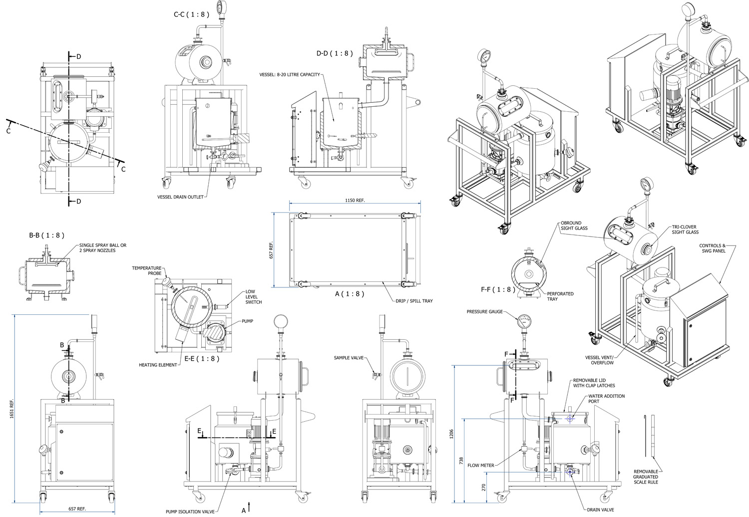
A pharmaceutical client required a specialised small cleaning module designed and fabricated from stainless 316. The requirement was to enable test pieces to be placed in a chamber and tested with different detergents for a pharmaceutical washing application. Working with our design partner Epsilon Pharmaservices, Belmont fabricated and assembled the unit.

Fully compliant with current GMP regulations and tested according to exacting qualification protocols the project success lead to several additional orders for the company delivered worldwide.

 

<a class="et_pb_promo_button et_pb_button" onclick="goBack()">Go back</a><!-- [et_pb_line_break_holder] --><!-- [et_pb_line_break_holder] --><script><!-- [et_pb_line_break_holder] -->function goBack() {<!-- [et_pb_line_break_holder] --> window.history.back();<!-- [et_pb_line_break_holder] -->}<!-- [et_pb_line_break_holder] --></script>